| MLS # | 972018 |
| 房资料 | 4房, 2浴, 洗碗机, 洗衣机, 车库, 地0.23英亩, 1924 ft2 室內尺, 室內179m2平方米 上市时间: -6天 |
| 建造年份 | 1963年 |
| 地稅 | $1万4 ($14,337) |
| 燃料 | 原油 Oil |
| 暖气系统 | 地板/墙壁 Radiant (Floor/Wall) |
| 火车站 | 1.3 英里到 Wyandanch 火车站 |
| 2.1 英里到 Pinelawn 火车站 | |
![]() |
欢迎来到西巴比伦的568 Centerwood Street,这是一栋提供灵活生活空间和多种近期升级的高架别墅。该物业位于北巴比伦学区,拥有两层的多功能布局。
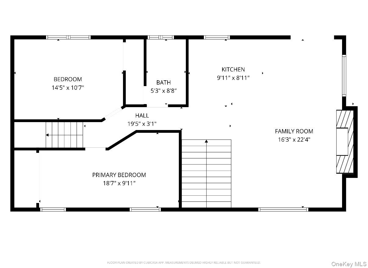
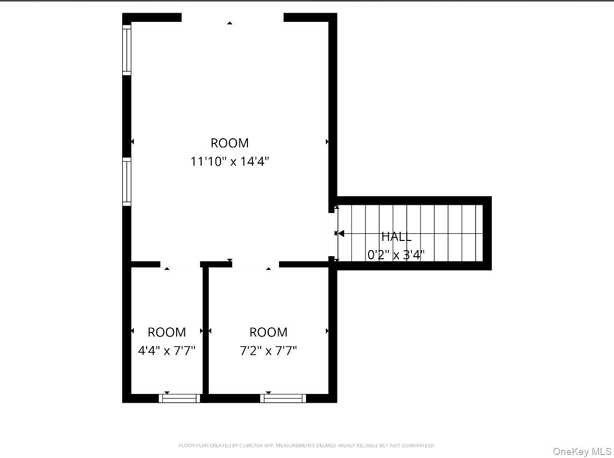
上层设有开放式的客厅和餐厅区域,配备电壁炉、可用餐的厨房、两个卧室和一个完整浴室。该层还包括额外的未完成的休闲空间,具有将其改造成未来主卧和浴室的潜力。阳台位于扩展区外。
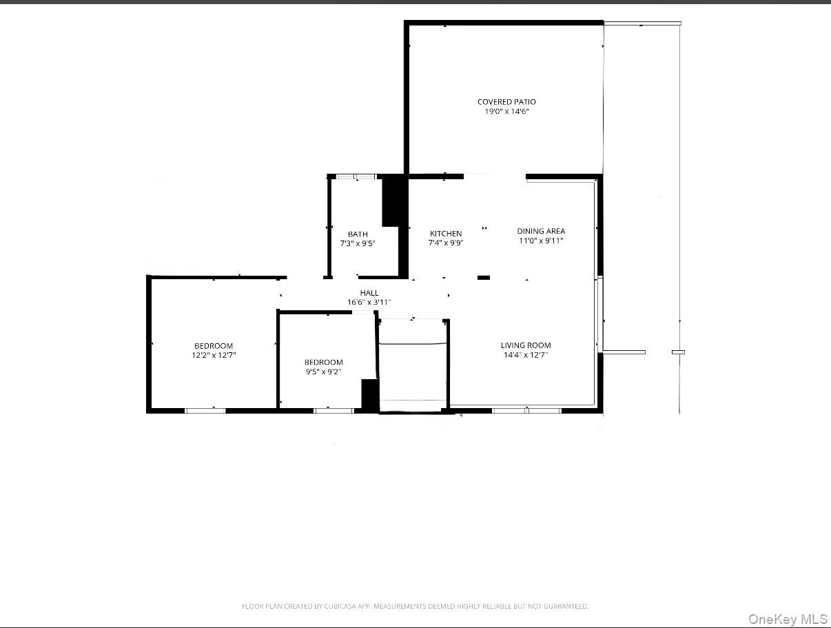
下层提供开放式布局,设有可用餐的厨房和客厅/餐厅组合、两个卧室和一个带有辐射加热地板的完整浴室。下层大部分区域铺有硬木地板。该层之前曾持有巴比伦镇的附属公寓许可证,近期已过期,可能有资格续期;鼓励买家与巴比伦镇核实。
其他特色包括油加热与基座供暖、三区域锅炉和全屋迷你分体式空调。物业配备两种供暖系统、更新的电气系统、三个电气面板、200安培服务、以及一条单独的100安培服务用于扩展/车库。其他特点包括升级的绝缘材料、防水和3/4英寸胶合板底板、带开关的升级水泵、石材边界的铺路车道、自动浴室湿度风扇、安全报警系统、扩展区的地热地板和一个汽车附属车库。靠近学校、购物和主要高速公路!
Welcome to 568 Centerwood Street in West Babylon, a hi-ranch style home offering flexible living space and a variety of recent upgrades. Located in the North Babylon School District, this property provides a versatile layout across two levels.
The upper level features an open living and dining area with an electric fireplace, an eat-in kitchen, two bedrooms, and one full bathroom. This level also includes additional unfinished bonus spaces that offer the potential to be completed into a future primary bedroom and bathroom. A balcony is located off the extension area.
The lower level offers an open layout with an eat-in kitchen and living room/dining room combination, two bedrooms, and one full bathroom with radiant heated floors. Hardwood floors run throughout much of the lower level. This level previously had an accessory apartment permit through the Town of Babylon which has recently expired and may be eligible for renewal; buyers are encouraged to verify with the Town of Babylon.
Additional features include oil heat with baseboard heating, a three-zone boiler, and mini-split HVAC units throughout the home. The property is equipped with two heating systems, updated electric, three electrical panels, 200-amp services, and a separate 100-amp service for the extension/garage. Other features include upgraded insulation, waterproofed & 3/4-inch plywood subflooring, an upgraded water pump with switch, paver driveway with granite border, automatic bathroom humidity fan, security alarm system, heated flooring in the extension, and a one-car attached garage. Close to schools, shopping, and major highways!
This information is not verified for authenticity or accuracy and is not guaranteed and may not reflect all real estate activity in the market. Listing courtesy of Listing Pro Realty Services © 2026







