| ID # | RLS20068217 |
| 房资料 | 二房一厅一厨二浴, 建筑有20公寓, 建筑有5层楼 上市时间: 0天 |
| 建造年份 | 1920年 |
| 地铁站 | 3 分钟到 Q |
| 5 分钟到 4, 5, 6 | |
![]() |
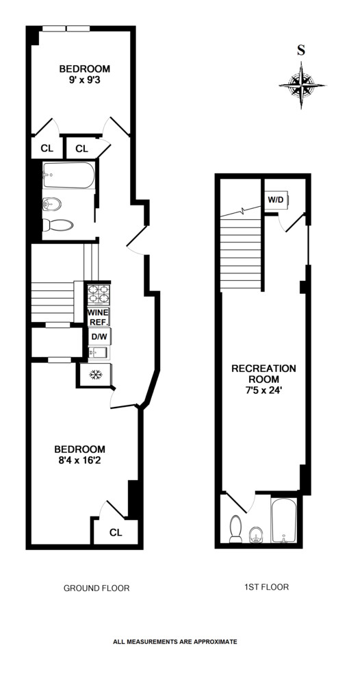
令人惊叹的翻新复式公寓 - 约克维尔黄金地段的灵活布局
明亮宽敞的可转换三卧室、两浴室复式公寓,位于约克维尔的心脏地带——完美平衡现代升级与经典的老式魅力。这所经过精心设计的房屋可以作为宽敞的两卧室,配有一个阳光明媚的南向客厅,或轻松改造为三卧室布局,以满足您的需求。
步入全新翻新的现代厨房,配备时尚的装饰和充足的储存空间。主层设有两间舒适的卧室和一间时尚的全浴室。楼下,空间宽敞的下层卧室提供私人浴室和公寓内洗衣机/干衣机,方便至极。
该公寓位于一栋维护良好的无电梯建筑内,配有视频对讲系统,地理位置优越,临近一个热闹的街区,步行即可到达Citi Bike站,交通便利。轻松通勤,附近有4/5/6号地铁,新的第二大道Q线也仅几条街的距离。
生活在Equinox、Whole Foods、Fairway、Shake Shack和多家咖啡馆、餐厅及社区最爱之处,享受都市便利与上东区魅力的完美结合。
可于2月1日入住。申请流程简单。
- 每位申请人需支付20美元的申请/信用检查费用。
- 需支付一个月的安全押金以及首月租金。
- 租户负责支付电费。
Stunning Renovated Duplex - Flexible Layout in Prime Yorkville
Bright and spacious convertible 3-bedroom, 2-bath duplex in the heart of Yorkville - perfectly balancing modern upgrades with classic prewar charm. This thoughtfully designed home can be enjoyed as a generous 2-bedroom with a sunny south-facing living room, or easily converted to a 3-bed layout to suit your needs.
Step into a fully renovated modern kitchen complete with sleek finishes and ample storage. The main floor features two comfortable bedrooms and a stylish full bathroom. Downstairs, a large lower-level bedroom offers an en-suite bath and in-unit washer/dryer for ultimate convenience.
Situated in a well-maintained walk-up building with video intercom, this location puts you right on a vibrant block with a Citi Bike station steps away and easy access to transportation. Enjoy quick commutes with the 4/5/6 trains nearby and the new Second Avenue Q line just blocks away.
Live steps from Equinox, Whole Foods, Fairway, Shake Shack, and a wide selection of cafes, restaurants, and neighborhood favorites - blending urban convenience with Upper East Side charm.
Available Feb 1st. Easy application process.
- There is a $20 application / credit check charge for each applicant.
- Security Deposit of one month and First Month also due.
- Tenant pays electricity
This information is not verified for authenticity or accuracy and is not guaranteed and may not reflect all real estate activity in the market. ©2025 The Real Estate Board of New York, Inc., All rights reserved.






