| ID # | RLS20067915 |
| 房资料 | 建筑名称: THE BEAUMONT 一房一厅一厨一浴, 半浴, 1062 ft2 室內尺, 室內99m2平方米, 建筑有166公寓, 建筑有31层楼 上市时间: 1天 |
| 建造年份 | 1982年 |
| 地铁站 | 3 分钟到 1, A, B, C, D |
| 8 分钟到 N, Q, R, W | |
| 10 分钟到 E | |
![]() |
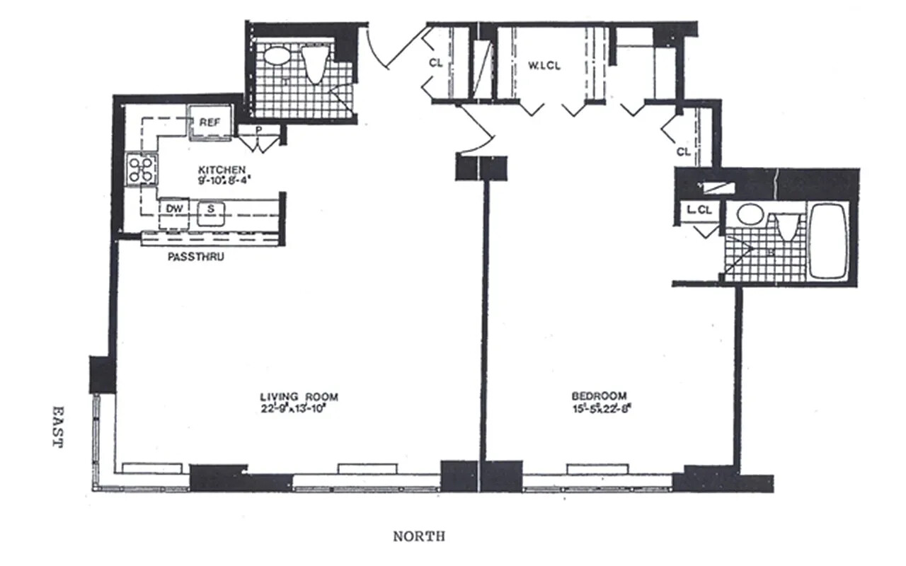
您在西61街30号,21F单元的非凡城市度假地来了!这间宽敞的一居室合作公寓位于典型的战后高层建筑的21楼,俯瞰城市,面积达到令人印象深刻的1,017平方英尺,状况极佳。单位设有经典的传统厨房,理想的空间可供在宽敞的客厅和餐区烹饪美食后放松,宽大的窗户提供惊艳的开放城市景观和中央公园的美景,捕捉到城市的生机脉搏。走出去享受丰富的豪华建筑设施,包括全日制门卫和礼宾服务,确保您的方便与安心。大楼的无烟环境和优雅设计使其成为理想的家园。在大楼美丽的庭院中享受宁静时光,或在精致的屋顶露台上欣赏全景城市风光。该栋大楼位于热闹的社区,您将发现自己距离各种文化和娱乐场所只有几步之遥。中央公园轻松可达,适合悠闲散步和野餐,而附近的交通选择则使得城市出行轻而易举。探索多样化的餐饮、购物和娱乐场所,这些都定义了标志性的纽约市生活体验。凭借如此卓越的设施和绝佳的位置,该物业为寻求提升城市生活方式的人们提供了美好的机会。费用:一个月的安全押金。申请处理费700美元。数字文件保留费112.50美元。入住费500美元。入住押金费1000美元。消费者报告费20美元。
Your exceptional urban retreat at 30 West 61st Street, Unit 21F is here! Nestled high above the city on the 21st floor of a quintessential post-war high-rise, this spacious one-bedroom coop offers an impressive 1,017 square feet of living space in excellent condition. The unit features a classic conventional kitchen, ideal space for whipping up culinary creations before relaxing in the generous living room, and dining area where large windows provide stunning open cityscape views and Central Park that capture the vibrant heartbeat of the city. Step outside to enjoy a wealth of luxurious building amenities, including full-time doorman and concierge services, ensuring convenience and peace of mind. The building’s smoke-free environment and elegant design make it a desirable place to call home. Enjoy tranquil moments in the building’s beautiful courtyard or take in panoramic city views from the sophisticated roof deck. Located in a lively neighborhood, you'll find yourself moments away from a myriad of cultural and recreational spots. Central Park is easily accessible for leisurely strolls and picnics, while nearby transportation options make navigating the city a breeze. Explore a vibrant array of dining, shopping, and entertainment venues that define the iconic New York City living experience. With such remarkable amenities and a fantastic location, this property offers wonderful opportunities for those seeking an elevated city lifestyle. Fees: One month security fee. Application Processing Fee $700. Digital Document Retention Fee $112.50. Move-in fee $500. Move-in Deposit Fee $1000. Consumer Report $20
This information is not verified for authenticity or accuracy and is not guaranteed and may not reflect all real estate activity in the market. ©2025 The Real Estate Board of New York, Inc., All rights reserved.






