| ID # | RLS20064844 |
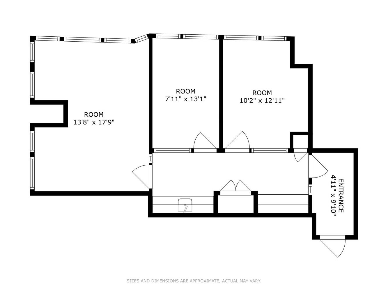
| 房资料 | 统舱 STUDIO, 洗衣机, 烘干机, 1336 ft2 室內尺, 室內124m2平方米, 建筑有101公寓, 建筑有36层楼 上市时间: 1天 |
| 建造年份 | 2009年 |
| 地铁站 | 2 分钟到 B, D, F, M |
| 5 分钟到 N, R, W, 7 | |
| 6 分钟到 S | |
| 7 分钟到 1, E, Q | |
| 8 分钟到 2, 3 | |
| 9 分钟到 C, 4, 5, 6, A | |
![]() |
位于曼哈顿著名的钻石区中心,Gem Tower(宝石大厦)50 West 47th Street的办公公寓是一个顶级的A级办公空间,旨在满足现代企业的最高标准。这个先进的设施拥有流线型的玻璃外立面、前沿的安全系统和反映Gem Tower独特性和复杂性的优质设施。每个办公室套件提供开放、灵活的布局,地板到天花板的窗户提供充足的自然光和纽约市天际线的卓越景观。
主要亮点包括先进的暖通空调系统、24/7的安全访问和LEED认证的可持续性特点,成为寻求奢华、高效和环境责任的企业的理想选择。租户享有世界级餐饮、购物和交通选择的便利,使其成为重视声望和便利的公司的理想位置。
Situated in the heart of Manhattan's renowned Diamond District, the office condominium at the Gem Tower, 50 West 47th Street, is a premier Class A office space designed to meet the highest standards of modern businesses. This state-of-the-art facility features a sleek glass facade, cutting-edge security, and premium amenities that reflect the exclusivity and sophistication of the Gem Tower. Each office suite provides an open, versatile layout with floor-to-ceiling windows offering abundant natural light and exceptional views of the New York City skyline.
Key highlights include advanced HVAC systems, 24/7 secure access, and LEED-certified sustainability features, making it an ideal choice for businesses seeking luxury, efficiency, and environmental responsibility. Tenants enjoy proximity to world-class dining, shopping, and transportation options, making it a prime location for firms that value both prestige and convenience.
This information is not verified for authenticity or accuracy and is not guaranteed and may not reflect all real estate activity in the market. ©2025 The Real Estate Board of New York, Inc., All rights reserved.







