| ID # | 939982 |
| 建造年份 | 2001年 |
| 地稅 | $7万 ($70,514) |
| 空调 | 中央空调 Central Air |
![]() |
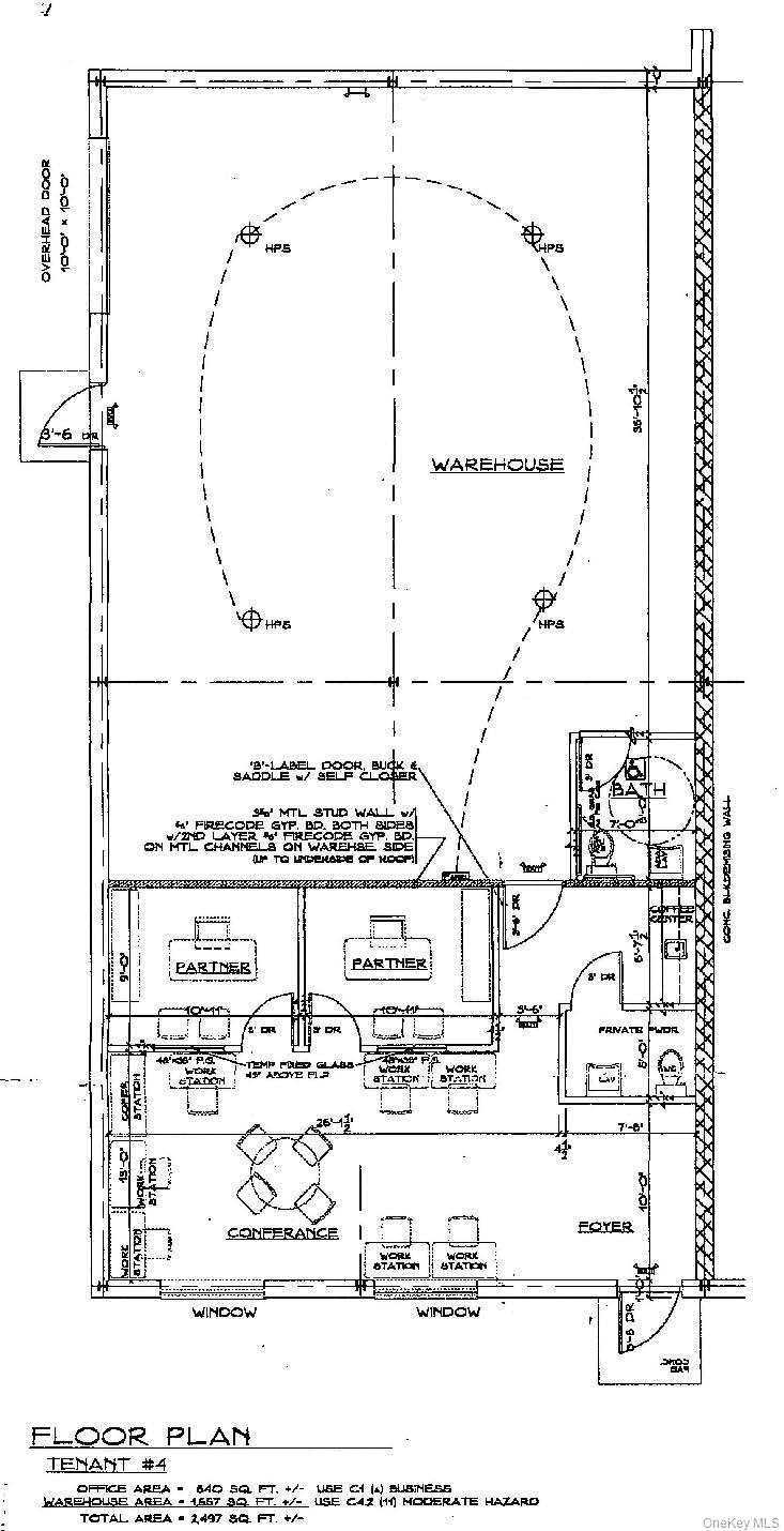
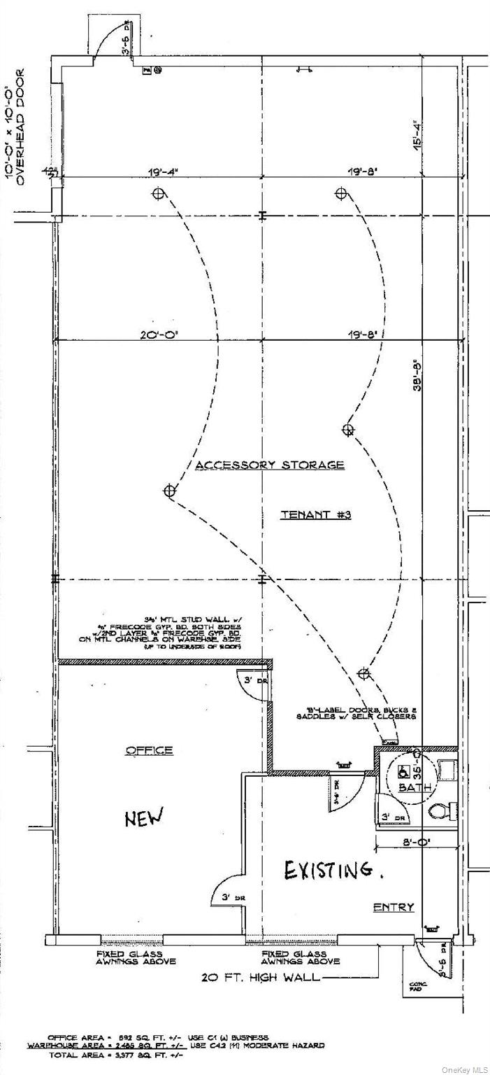
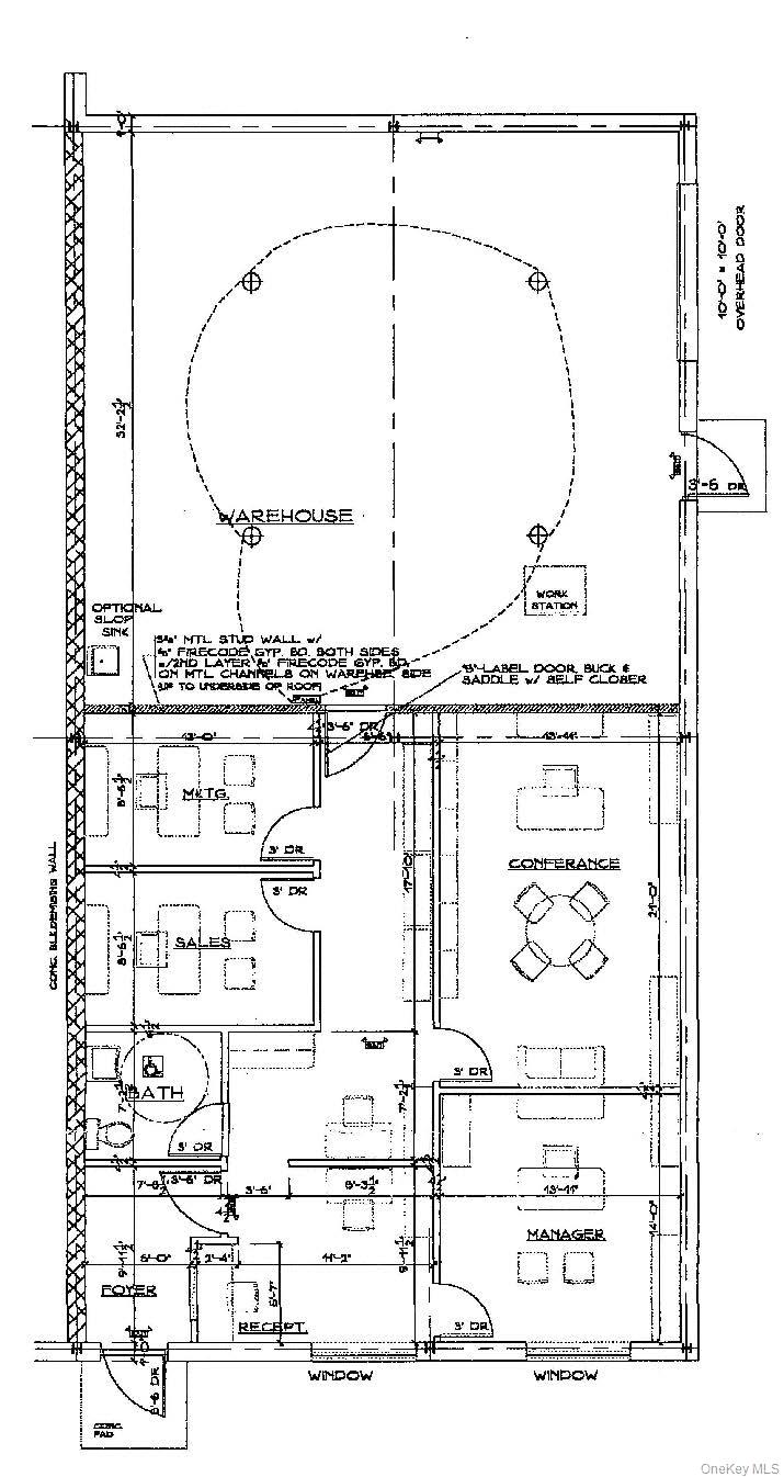
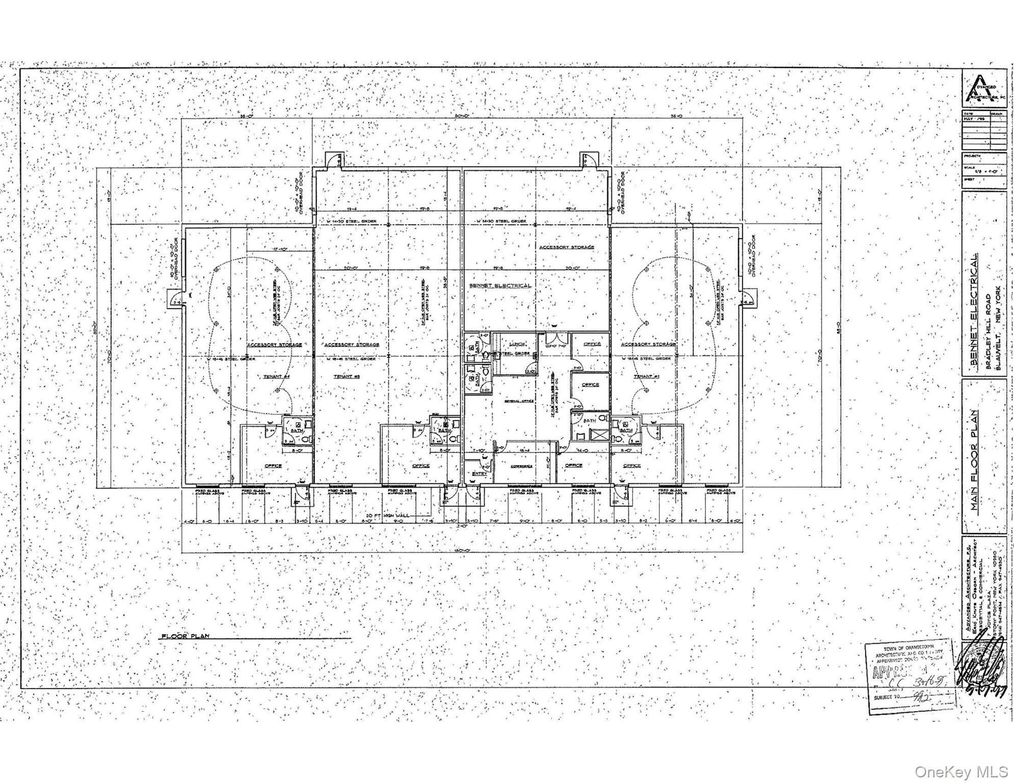
目前用于办公室和仓库。建筑面积11,700平方英尺。占地面积45,000平方英尺。 LOI区域 - 学校、实验室、专业办公室、 municipal使用权。原业主 - 25年以上。建于2000年。精心维护。四个单元2400平方英尺 - 3450平方英尺,提供多个卫生间、简易厨房和会议区域。易于组合单元/仓库空间。每个单元都有10 x 10卷帘门/驾车进入的门。净高14英尺。配备喷淋系统。加热的仓库区域。可停放23辆车。电力:每个单元200A,三相120/208V。市政供水和排污。2024年新空调单位。从303号公路容易到达。距离59号公路1英里,距离纽约州收费公路不到2英里。非常适合业主/租户或投资者。原租户为按月租赁。不要等待,以免错失这个机会。今天就打电话了解更多信息并安排看房。
Currently utilized as Office & Warehouse. 11,700 SF building. 45,000SF lot area. LOI Zone - schools, labs, professional offices, municipal use By Right. Original owner – 25+ years. Built in 2000. Meticulously maintained. Four units 2400 SF – 3450 SF offer multiple restrooms, kitchenettes and conference areas. Easy to combine units/warehouse spaces. 10 x 10 Roll up/Drive in doors in each unit. 14 ft clear ceilings. Sprinklers. Heated warehouse areas. Parking for 23 vehicles. Power: 200A, 3 phase 120/208V per unit. Municipal water and sewer. New HVAC units - 2024. Easy access from Route 303. 1 mile to Route 59, under 2 miles to NY Thruway. Great for owner/occupier or investor. Original month to month tenants. Do not wait and risk missing out on this opportunity. Call today for more information and to schedule a showing. © 2025 OneKey™ MLS, LLC







