纽约州 Cobleskill

房子 HOUSE

地址: ‎172 Elm Street

邮编: 12043

3房, 1浴, 2295ft2

分享到

售$24万5

约人民币1百万元

ID # 11612467

中文 - 简体 Chinese

卖家地产公司 Broker Contact

Are you the listing agent? Sign up to add your name and cell #

你是卖家经纪人吗?请注册以添加你姓名和手机号码
COUNTRY BOY REALTY 公司: ‍518-234-4371

售$24万5 - 172 Elm Street, 纽约州 Cobleskill , NY 12043 | ID # 11612467

ID #‎ 11612467
房资料
Details
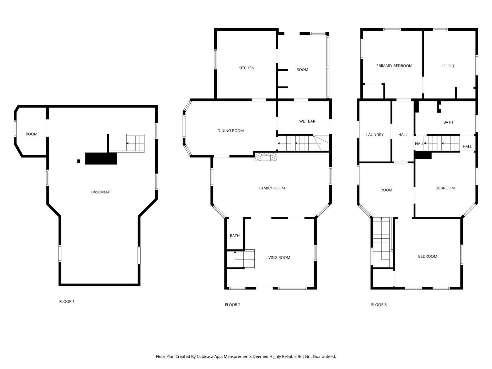
3房, 1浴, 2295 ft2 室內尺, 室內213m2平方米, 建筑有2层楼
上市时间: 6天
建造年份
Construction Year
1890年
地稅 Taxes
(per year)
$4千4 ($4,420)
地下室
Basement
全地下室 Full basement
英文网站
English Webpage
Broker Link

Are you the listing agent? Sign up to add your name/photo/cell to your flyers. helpdesk@Samaki.com

房屋英文概況 English Description

Discover history & charm with this delightful 3 bedroom, 1.5 bathroom home nestled in Cobleskill's treasured Historic District. This property welcomes you with refinished wood floors that tell stories of decades past, while modern updates ensure comfortable living. The heart of the home features a cozy fireplace ideal for gatherings while colorful walls & rooms create an inviting atmosphere throughout. Bonus room for your at home office. A wonderful enclosed porch provides the perfect space for morning coffee or evening relaxation in the summertime. Recent interior improvements include fresh painting, plastering, & tasteful wallpapering that highlight the home's inherent character. The heating system has been updated with a new boiler in 2022. New plumbing in the mudroom, recently installed sump pump, & drainage trenching completed in 2021. The property boasts a spacious barn that, while requiring some TLC, it offers tremendous potential for workshops, storage, or creative projects. Electricity was conveniently added to the barn in 2024, expanding its possibilities. Daily conveniences are easily accessible with nearby grocery store, school, and other amenities. The welcoming atmosphere & distinctive character make this property truly special for those seeking something beyond ordinary. *chandelier in primary bedroom not included in the sale. ROW driveway.

Courtesy of COUNTRY BOY REALTY

公司: ‍518-234-4371

周边物业 Other properties in this area




分享 Share

售$24万5

房子 HOUSE
ID # 11612467
‎172 Elm Street
Cobleskill, NY 12043
3房, 1浴, 2295ft2


卖家经纪人

Listing Agent(s):‎
你是卖家经纪人吗?请注册以添加你姓名和手机号码
Are you the listing agent? Sign up to add your name and cell #‎

公司: ‍518-234-4371

请说您在SAMAKI.COM看此广告

请也给我ID # 11612467