| ID # | 904091 |
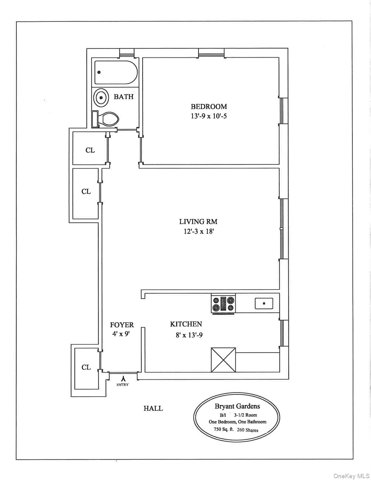
| 房资料 | 一房一厅一浴, 空调, 750 ft2 室內尺, 室內70m2平方米, 建筑有2层楼 |
| 建造年份 | 1950年 |
| 管理费 | $1千 ($1,030) |
| 燃料 | 天然气 Gas |
| 空调 | 壁挂式空调 Wall Unit AC |
![]() |
在这个迷人的角落公寓中,体验郊区的宁静与城市生活的便利,公寓位于宁静的布莱恩特花园社区。对于通勤者而言,这是梦想之地;对于首次购房者和寻求简单生活方式的人来说,这也是理想之选。这间一卧一卫的珍品是您舒适生活的通行证。房间充满自然光,拥有一个可供用餐的厨房、宽敞的卧室和设施齐全的浴室,并且整个空间有足够的储物空间。居民享受宽阔的 landscaped 地面奢华,那里有适合儿童的可爱游乐场、可供娱乐的公共烧烤区、野餐桌和社区花园。更吸引人的是,车库和储藏室可供租用(视情况而定),每栋楼内还有洗衣设施。如果您驾驶电动车,也可以方便地使用 EV 充电站。日常所需物品触手可及,热闹的怀特普莱恩斯市中心有商店和餐馆,距离公寓仅几步之遥。对于在纽约市工作的专业人士来说,附近的地铁北线将使您的市区通勤变得轻松自如。在怀特普莱恩斯的活力环境中发现您自己的宁静与舒适。欢迎回家,这里是舒适与便利的结合处。
Experience suburban tranquility with the convenience of city life in this charming corner apartment nestled within the serene Bryant Gardens community. A commuter's dream or an ideal choice for 1st-time buyers & those seeking a simpler lifestyle, this 1 bedroom, 1 bathroom gem is your ticket to comfortable living. Flooded with natural light, the space boasts an eat in kitchen, generously sized bedroom & well-appointed bathroom, complemented by ample storage throughout. Residents enjoy the luxury of expansive, landscaped grounds featuring delightful playgrounds for children, a communal BBQ area for entertaining, picnic tables, & a community garden. Adding to the allure is the availability of garages & storage units for rent (Subject to availability), as well as laundry facilities in every building. Driving an electric vehicle? Take advantage of the convenient EV charging station. Daily essentials are never far with downtown White Plains, bustling with shops & eateries, just a stone's throw away. And for the NYC professional, the nearby Metro North ensures your city commute is a breeze. Discover your own slice of peace & ease, all within the vibrant setting of White Plains. Welcome home to where comfort meets convenience. © 2025 OneKey™ MLS, LLC







