| ID # | 892831 |
| 房资料 | 二房一厅一浴, 洗碗机, 洗衣机, 烘干机, 车库, 空调, 944 ft2 室內尺, 室內88m2平方米, 建筑有2层楼 |
| 建造年份 | 1940年 |
| 管理费 | $1千 ($1,090) |
| 空调 | 壁挂式空调 Wall Unit AC |
![]() |
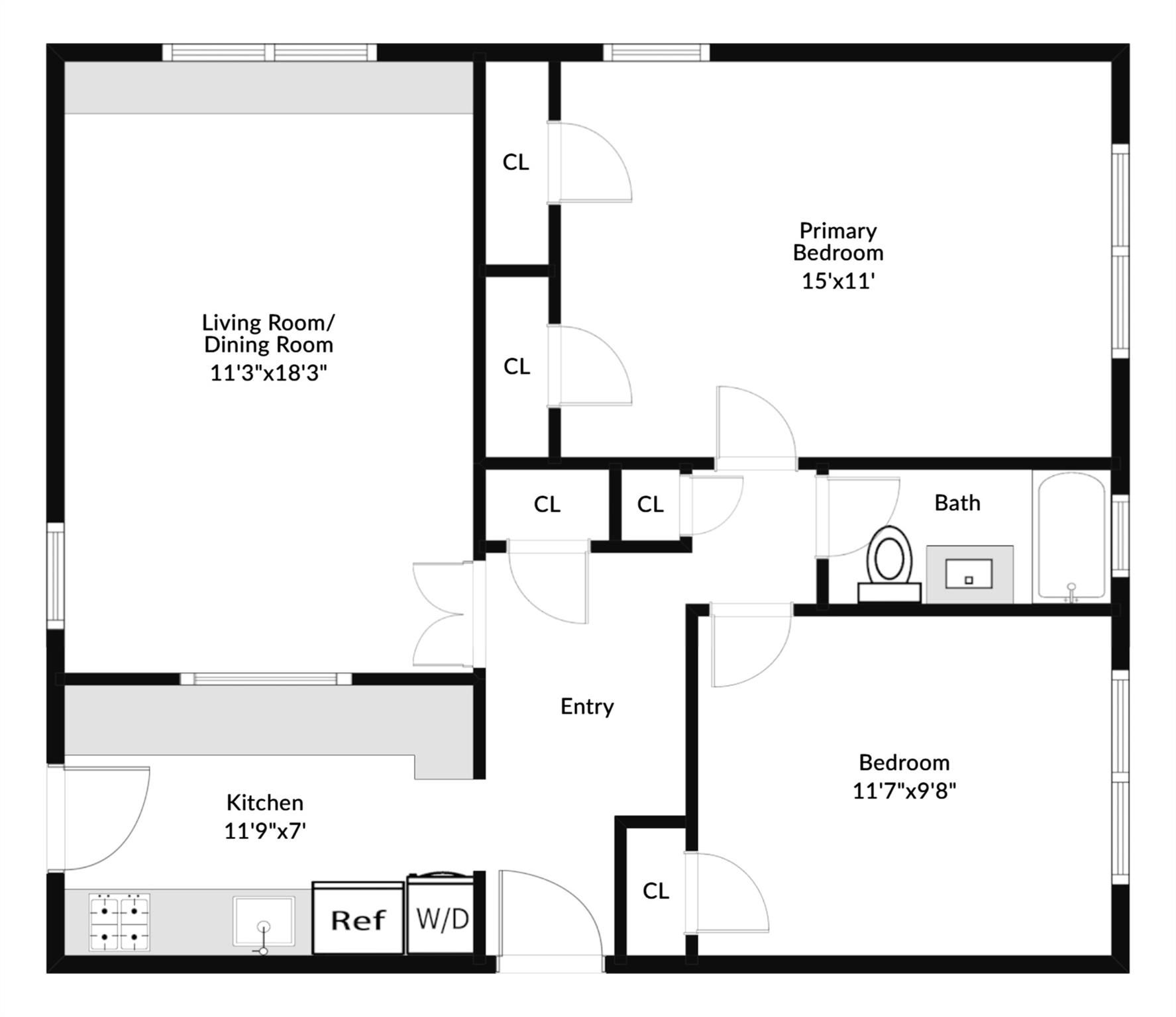
享受宁静的湖景和阳光明媚的空间,在这间迷人的首层两卧室单元中,正对风景如画的因尼斯湖。湖边入口仅几步之遥,这个维护良好的单元完美融合了自然、舒适和便利。走进一个宽敞的欢迎大厅,足够容纳一张小餐桌。更新后的厨房设有早餐吧、洗衣机和干衣机、硬木地板,以及通往私人围栏阳台和花园的门,非常适合户外娱乐或放松。
宽敞的客厅拥有两扇明亮的窗户、双内置书架、通往厨房和餐区的通道,以及贯穿整个房间的优质木地板。两个卧室都提供宁静的湖景、宽敞的衣橱空间和硬木地板。经过翻新的瓷砖浴室包括一个定制储物柜,增加了便利性。尽享因尼斯湖的所有乐趣——海滩通道、划船、野餐区和皮划艇存储,尽在你家门口。此外,居民有资格加入湖岛乡村俱乐部,享受游泳池、网球场和高尔夫球场。不要错过在一个宁静、设施丰富的社区湖畔生活的机会。
Enjoy tranquil lake views and sun-filled spaces in this charming first-floor, 2-bedroom simplex unit directly across from the picturesque Lake Innisfree. With the lake entrance just steps away, this beautifully maintained unit offers a perfect blend of nature, comfort, and convenience. Step into a welcoming entry hall spacious enough to accommodate a small dining table. The updated kitchen features a breakfast bar, in-unit washer & dryer, hardwood floors, and a door leading to your private, fenced-in patio and garden—ideal for entertaining or relaxing outdoors.
The large living room boasts two bright windows, double built-in bookcases, a pass-through to the kitchen and dining area, and rich wood floors throughout. Both bedrooms offer serene lake views, generous closet space, and hardwood flooring. A renovated tile bathroom includes a custom storage cabinet for added convenience. Enjoy all that Lake Innisfree has to offer—beach access, boating, picnic areas, and kayak storage—right at your doorstep. Plus, residents are eligible for membership at Lake Isle Country Club, featuring pools, tennis courts, and golf. Do not miss your chance to live lakeside in a peaceful, amenity-rich community. © 2025 OneKey™ MLS, LLC







