| MLS # | 854005 |
| 房资料 | 3房, 2浴, 洗碗机, 洗衣机, 空调, 1400 ft2 室內尺, 室內130m2平方米 上市时间: 239天 |
| 建造年份 | 2025年 |
| 空调 | 中央空调 Central Air |
| 地下室 | 全地下室 Full basement |
| 火车站 | 3.2 英里到 Mastic Shirley 火车站 |
| 4.3 英里到 Bellport 火车站 | |
![]() |
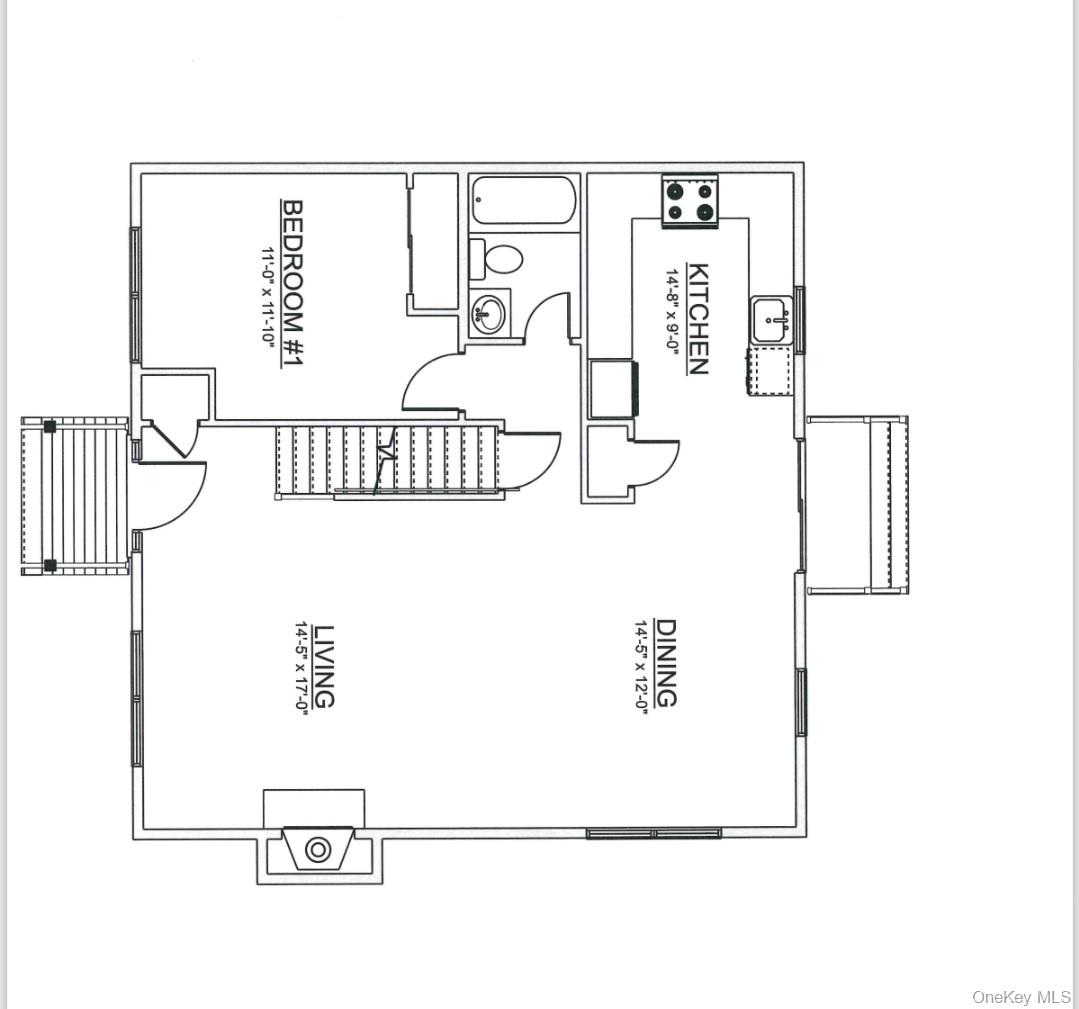
新建房屋……这是一栋将要建造的3卧室海角房/ 一楼有一个卧室,二楼有两个卧室/ 有两个完整的浴室……一个在一楼……一个在二楼/ 你可以选择橱柜/ 浴室的瓷砖/ 厨房的花岗岩/ 卧室的地毯(均由建设者提供选择)不锈钢电器套件(由建设者提供选择)/ 热泵/ 中央空调/ 完整未装修的地下室,顶部高度为8英尺,配有一个紧急出口窗户和3个额外的尺寸为2x3的窗户(它们比标准大小的地下室窗户大)/ 200安培电源/ 地下室面积约为900平方英尺/ 建设即将开始!!!这是以前建造的房屋的照片!你仍然有时间进行定制!!!!
New Construction Home....This to be built 3 Bedroom Cape/ The first floor has one bedroom and the Second floor has 2 bedrooms/There is 2 full bathrooms... One on the first floor...One on the second floor/You have a choice of cabinets/choice of tiles for the bathrooms/choice of granite for the Kitchen/choice of carpet for the bedrooms ( All from Builder's Selection) Stainless Steel Appliance Package( From Builder's Selection)/Heat Pump/Central Air Conditioning/Full Unfinished Basement with 8ft ceilings with One Egress Window plus 3 additional windows that are 2x3 in size ( they are larger then the standard size basement window) 200 AMP service/Basement size approximately 900 square feet/ Construction to begin soon!!! Photos of a previously built home! You Still Have Time to Customize!!!!
( SPANISH )
Esta casa tipo cape de 3 dormitorios se construirá/ La primera planta tiene un dormitorio y la segunda planta dos/ Hay dos baños completos... uno en la primera planta y otro en la segunda/ Puede elegir entre gabinetes/ azulejos para el baño/ granito para la cocina/alfombra para los dormitorios (todo a elección del constructor) Paquete de electrodomésticos de acero inoxidable/bomba de calor/aire acondicionado central/sótano completo sin terminar con techos de 8 pies con una ventana de salida más 3 ventanas adicionales que son 2x3 en tamaño (son más grandes que las ventanas de sótano de tamaño estándar) El tamaño del sótano es de aproximadamente 900 pies cuadrados. La construcción comenzará pronto!! Fotos de una casa ya construida... © 2025 OneKey™ MLS, LLC







