| ID # | 821797 |
| 房资料 | 地4.02英亩 上市时间: 284天 |
| 地稅 | $2万6 ($26,324) |
![]() |
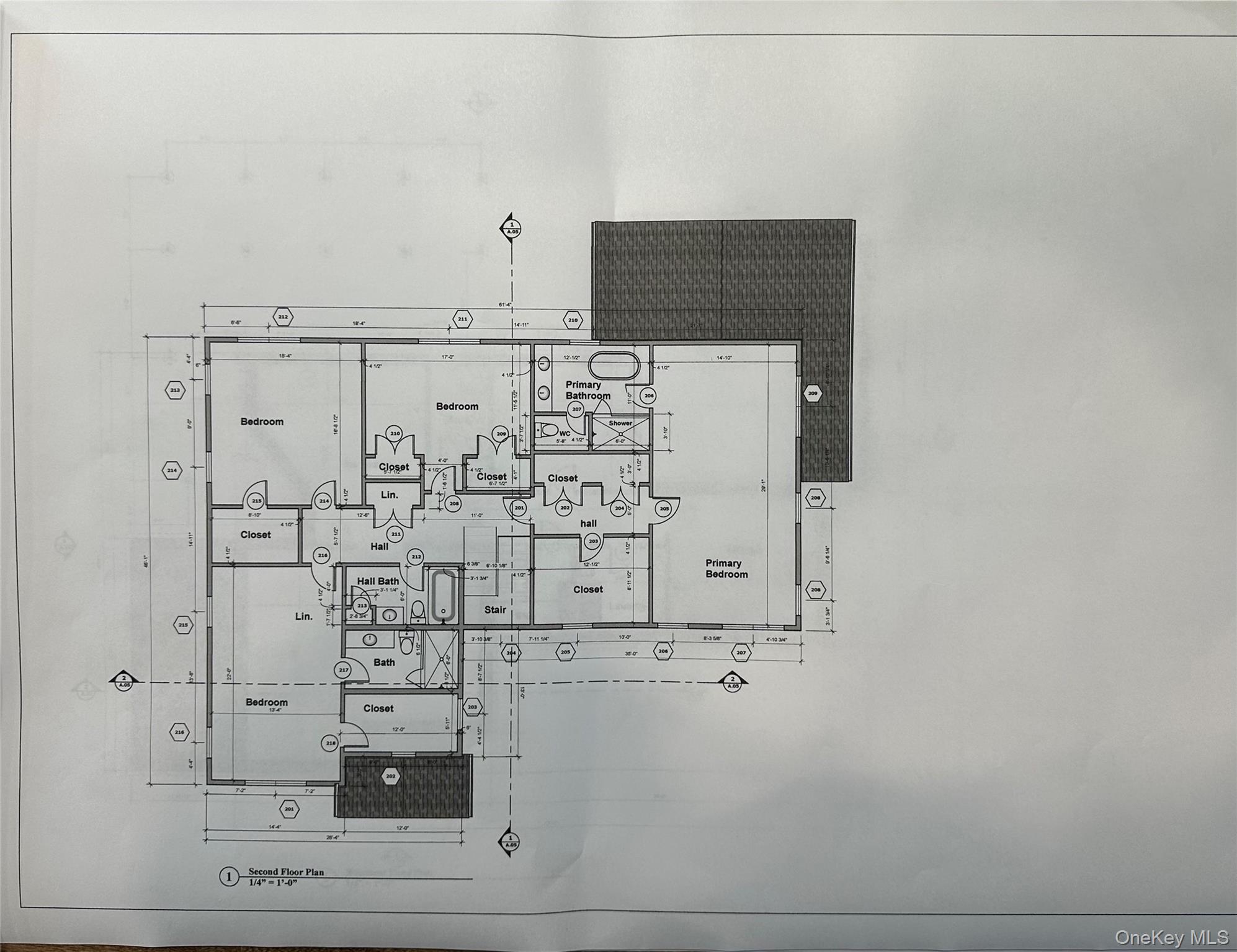
准备好在纽约贝德福德市建造的4英亩地块,邻近米安斯河峡谷保护区。现有基础,化粪池已就位,所有公用设施均可用。卫生局已批准4间卧室的设计。机会来了,您可以尽快开始建设您的愿景。列表中所示的计划包括4间卧室、4,133平方英尺的房屋渲染图。正在等待贝德福德镇的批准。便利地位于贝德福德村和斯坦福之间的长岭路,提供便利和便捷的通道,方便您享受该地区的所有优势,包括文化、高速公路以及前往大中央车站的附近火车,行程不到60分钟。
Ready to build 4 acre lot in prime location in Bedford NY, bordering the Mianus River Gorge Preserve. Existing foundation, Septic in place, all utilities available on premises. Board of Health Approval in Place for 4BR. Opportunity to come and start building your vision as soon as possible. Plans shown in listing included for 4 BR, 4,133 square ft. home shown in renderings. Waiting to be approved by The Town of Bedford. Conveniently situated on Long Ridge Road in between Bedford Village and Stamford offering convenience and easy access to all the area has to offer including culture, highways and nearby train to Grand Central in less than 60 minutes. © 2025 OneKey™ MLS, LLC






