布鲁克林市中心 Downtown Brooklyn

合作公寓 CO-OP [查收入]

地址: ‎270 Jay Street #14GH

邮编: 11201

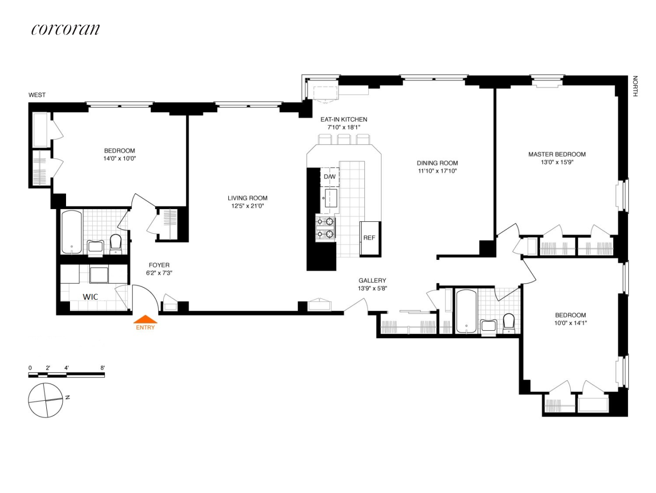
三房一厅二浴, 1500ft2

距离八大道中心4英里

分享到

已售
$124万
SOLD

约人民币9百万元

SOLD

中文 - 简体 Chinese


已售 $124万 SOLD - 270 Jay Street #14GH, 布鲁克林市中心 Downtown Brooklyn , NY 11201 | SOLD

房资料
Details
建筑名称: CONCORD VILLAGE
三房一厅二浴, 洗衣机, 烘干机, 1500 ft2 室內尺, 室內139m2平方米, 建筑有146公寓, 建筑有15层楼
建造年份
Construction Year
1950年
管理费
Maintenance Fees
$2千7 ($2,750)
公共汽车
Bus
0 分钟到 B67
1 分钟到 B26, B54, B57, B62
3 分钟到 B103, B25, B38
4 分钟到 B41, B52
5 分钟到 B69
7 分钟到 B45, B61, B65
地铁站
Subway
5 分钟到 A, C, 2, 3
6 分钟到 R, F, 4, 5
10 分钟到 B, Q
火车站
LIRR
1.1 英里到
Atlantic Terminal 火车站
2.4 英里到
Nostrand Avenue 火车站

Are you the listing agent? Sign up to add your name/photo/cell to your flyers. helpdesk@Samaki.com

房屋英文概況 English Description

Did somebody say a Classic Six layout in Concord Village? I am pleased to announce that I have just listed 270 Jay Street residence 14G, a corner 3BR 2 bath home in the sky. When I received the call 2 years ago that my neighbors and client wanted to purchase a second unit, and she described their vision for the space, we set on a journey to transform 2 smaller units into one luxurious 1,500-square-foot unit. PARKING SPACE (Subject to waitlist) and storage unit! Not to mention, 12 windows overlooking the park. Truly a rare find and a must-see in Concord Village.

270 Jay St #14G Dumbo Height's Brooklyn 11201.
Offered at $1,265.000.
Common charges $2,750.
For lease $6,500.

A full-service building that has a doorman-full time superintendent- shared and ample laundry facilities-onsite fitness center-lovely common roof deck with city views-parking-long term storage (available on a waitlist) bicycle storage. Close to transportation (A, C, 2, 3, 4, 5, F, R subway lines all within a short distance), restaurants, and the fun of Brooklyn living.
Montague St-Main St-Smith St-Wall St. First stop in Brooklyn. Pet friendly. Sorry, only one dog is allowed.

Showing BY APPOINTMENT ONLY.

PS 8.

This information is not verified for authenticity or accuracy and is not guaranteed and may not reflect all real estate activity in the market. ©2025 The Real Estate Board of New York, Inc., All rights reserved.

Courtesy of Corcoran Group

公司: ‍212-355-3550

周边物业 Other properties in this area




分享 Share

已售 $124万
SOLD

合作公寓 CO-OP [查收入]
SOLD
‎270 Jay Street
Brooklyn, NY 11201
三房一厅二浴, 1500ft2


卖家经纪人

Listing Agent(s):‎
你是卖家经纪人吗?请注册以添加你姓名和手机号码
Are you the listing agent? Sign up to add your name and cell #‎

公司: ‍212-355-3550

请说您在SAMAKI.COM看此广告

请也给我 SOLD